Exkluzivně nabízíme prodej bytu 2+kk , 60,66m2 s terasou a předzahrádkou v Nučicích u Rudné
Nabízí realitní kancelář
Kontakt na makléře
| Cena: | 8 680 000 Kč (za nemovitost)vč. provize RK |
|---|---|
| Lokalita: | Nučice, Praha-západ, Středočeský |
| Stav nabídky: | aktuální |
| Číslo: | 65-11626 |
| Typ reality: | Byty 2+kk - Byty |
| Celková plocha: | 60.66 m2 |
| zobraz na mapě » |
Exkluzivně nabízíme prodej bytu 2+kk, 60,66m2 v krásné lokalitě u lesa, ul. Na Stráži, Nučice u Rudné, v nově rostoucí rezidenční lokalitě "Na Stráži".
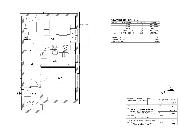
Tento přízemní byt 2+kk, 60,66m2 s vlastní předzahrádkou cca 150m2 a vyhrazeným parkováním před domem svou velkorysou dispozicí nabízí světlý obývací pokoj s kuchyňským koutem o velikosti 23,36m2, ložnici 14,95m2, koupelna s WC 7,32m2, a ostatním zázemím. Dokončení 4Q/2026. Dům ve kterém se bytová jednotka nachází je v krásné lokalitě Na Stráži, Nučice, je to nově vznikající rezidenční čtvrt s vlastním zázemím, s převažující zástavbou rodinnými domy, kde je kladený velký důraz na komfort a klidné bydlení u lesa. Nučice u Rudné (Praha – západ) se díky své poloze se staly velice žádanou lokalitou, a to nejen pro svou výbornou dopravní dostupnost, ale také bohatou občanskou vybavenost. Nučice a nedaleké město Rudná nabízejí bydlení v krásné přírodě, přesto však s veškerým komfortem a splněnými požadavky na aktivní život v této moderní době. Najdete zde mateřskou a základní školu, zdravotní středisko, zubní ordinaci, sportovní centra (moderní jízdárnu, kuželková dráha, areál pro frisbee, dva fotbalové stadiony, squash, tenis, plážový volejbal, minigolf, fitness, solárium, masáže atd.), poštu, obchody, restaurace a mnoho dalších služeb. Nučice jsou zároveň vstupní branou do kouzelných lesů Berounska, které lákají k vyjížďkám na kole po okolních cyklostezkách, nebo na rodinné výlety a pěší turistiku po krásných okolních místech jako je např. přírodní park Povodí Kačáku. Nedaleko se nachází i zatopený lom Amerika, hrad Karlštejn nebo romantické údolí řeky Berounky. Nučice a jejich okolí je místem jako stvořeným pro klidné bydlení, tak i výchovu Vašich dětí, nebo sport či relaxaci. K velkým nákupům můžete z Nučic vyrazit do blízkého komplexu, kterým je obchodní a zábavní centrum Zličín.Doporučuji prohlídku vzorového domu, kde Vám rádi poskytneme veškeré další informace a možnosti.
| Počet parkovacích míst: | 1 |
|---|---|
| Celkový počet podlaží: | 2 |
| Rok výstavby: | 2025 |
| Umístění objektu: | klidná část obce |
| Vlastnictví: | osobní |
| Technologie výstavby: | cihlová |
| Stav objektu: | novostavba |
| Sklep: | Ne |
|---|
| Třída energetické náročnosti budovy: | B - Velmi úsporná |
|---|
Podobné nabídky
Exkluzivně nabízíme prodej bytu 2+kk , 60,66m2 s terasou a předzahrádkou v Nučicích u Rudné
Cena 8 680 000 Kč (za nemovitost)
Prodej mezonetového bytu 3+1, 86 m? – Černošice, ulice Dr. Janského
Cena 9 300 000 Kč (za nemovitost)
Další informace
ZpětÚvodní strana » Reality a nemovitosti Praha-západ » Byty Praha-západ » Prodej byty Praha-západ » Prodej byty 2+kk Praha-západ » Exkluzivně nabízíme prodej bytu 2+kk , 60,66m2 s terasou a předzahrádkou v Nučicích u Rudné

