Prodej bytu 5+1/125 m2 s terasou a nebytový prostor 135 m2, pozemek 861 m2, Zápy u Brandýsa n.Labem
Nabízí realitní kancelář
Kontakt na makléře
| Cena: | 12 850 000 Kč (za nemovitost)s provizí RK |
|---|---|
| Lokalita: | Zápy, Praha-východ, Středočeský |
| Stav nabídky: | aktuální |
| Číslo: | 65-11649 |
| Typ reality: | Byty 5+1 - Byty |
| Celková plocha: | 861 m2 |
| zobraz na mapě » |
Představujeme zajímavou investiční příležitost s velkým potenciálem využití v městysu Zápy u Brandýsa nad Labem.
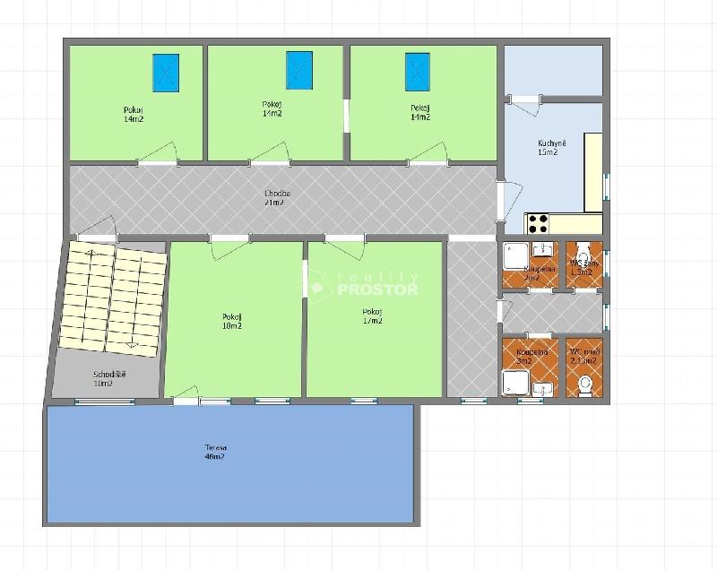
K prodeji je celá nemovitost s pozemkem, která nabízí bytovou jednotku 5+1 o velikosti 125 m? a nebytové prostory, přičemž celková užitná plocha objektu činí přibližně 260 m?. Budova se nachází na dobře dostupném místě při hlavní silnici v obci. Objekt byl postaven přibližně před 30 lety, má zastavěnou plochu 214 m? a stojí na pozemku o celkové výměře 861 m?. Bytová jednotka o velikosti 125 m? má vlastní vstup a nachází se v 1. patře. Aktuálně je rozdělena na pět místností, kuchyň a sociální zařízení. Prostor byl původně řešen jako otevřená klubovna, a proto lze stávající příčky poměrně snadno upravit nebo odstranit a dispozici přizpůsobit potřebám nového majitele. Po úpravě vnitřních instalací je možné například rozdělení na dvě menší bytové jednotky, případně využití části prostoru pro kanceláře či podnikání. Velkým benefitem je také prostorná terasa o velikosti 48 m?, orientovaná do dvora a zahrady. Přízemí objektu bylo v minulosti využíváno jako restaurační zařízení a nabízí 135 m? užitné plochy. Součástí je bývalý výčep o velikosti 64 m?, dále kuchyně, skladové prostory, sociální zázemí a zásobovací rampa v zadní části budovy. Stavba je napojena na elektřinu, veřejný vodovod a kanalizaci. Na pozemku se nachází také vlastní studna, která však v posledních letech nebyla využívána. Vytápění zajišťoval automatický kotel na tuhá paliva, umístěný v suterénu pod rampou, s rozvody topné vody do jednotlivých místností. Okna jsou původní dřevěná. Podél budovy vede příjezd na dvůr o velikosti 352 m?, vedený jako ostatní plocha, který umožňuje parkování přímo na vlastním pozemku. Na dvůr navazuje zahrada o výměře 295 m?, poskytující další prostor pro využití.Budova je v současnosti kolaudována jako objekt občanské vybavenosti, tedy jako nebytová stavba. Územní plán však umožňuje i využití pro bydlení, a to po dohodě se stavebním úřadem o změně užívání stavby. Nemovitost se nachází v oblasti smíšené obytné venkovské, která umožňuje kombinaci bydlení a podnikání, například pro služby nebo nerušící výrobu, jež svým provozem nenarušuje okolní zástavbu.Objekt je vhodný k rekonstrukci dle představ nového majitele, což nabízí možnost vytvořit si atraktivní bydlení, sídlo firmy nebo kombinaci obojího. Nemovitost je v současnosti téměř kompletně vyklizena, takže je připravena k úpravám.Velkou výhodou je také výborná dopravní dostupnost do Prahy. Obec leží v blízkosti dálnic D10 a D11 a stanice metra B – Černý Most je vzdálena přibližně 10 minut jízdy autem.V případě zájmu o bližší informace nebo sjednání prohlídky se prosím obraťte na makléře zakázky.
| Počet bytů v domě: | 1 |
|---|---|
| Počet podlaží pod zemí: | 1 |
| Celkový počet podlaží: | 3 |
| Rok výstavby: | 1994 |
| Umístění objektu: | rušná část obce |
| Vlastnictví: | osobní |
| Technologie výstavby: | smíšená |
| Počet parkovacích míst: | 3 |
| Stav objektu: | před rekonstrukcí |
| Plocha sklep: | 35 m2 |
|---|---|
| Plocha terasa: | 48 m2 |
| Sklep: | Ano |
|---|
| Topení tuhá paliva: | Ano |
|---|---|
| Topení ústřední: | Ano |
| Kanalizace: | Ano |
| Vodovod: | Ano |
| Elektro 400V: | Ano |
| Vlastní vodní zdroj: | Ano |
| Dálnice: | Ano |
|---|
| Třída energetické náročnosti budovy: | G - Mimorádně nehospodárná |
|---|
Podobné nabídky
Další informace
ZpětÚvodní strana » Reality a nemovitosti Praha-východ » Byty Praha-východ » Prodej byty Praha-východ » Prodej byty 5+1 Praha-východ » Prodej bytu 5+1/125 m2 s terasou a nebytový prostor 135 m2, pozemek 861 m2, Zápy u Brandýsa n.Labem

