Prodej rodinného domu 4KK, ZP 122 m2, UP 97,3m2, s pozemkem 768m2, Předboj, Západní Stráň, P-východ
Nabízí realitní kancelář
Kontakt na makléře
| Cena: | 12 500 000 Kč (za nemovitost)Cena je uvedena vč. provize a právních služeb |
|---|---|
| Lokalita: | Předboj, Praha-východ, Středočeský |
| Stav nabídky: | rezervováno |
| Číslo: | 79-4628 |
| Typ reality: | Samostatné domy - Domy |
| Celková plocha: | 97 m2 |
| zobraz na mapě » |
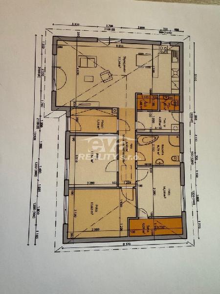
Dovolujeme si vám nabídnout ke koupi samostatný rodinný dům o velikosti 4+kk o zastavěné ploše 122m2, užitné ploše 96,2m2 s celkovým pozemkem 768m2 v žádané lokalitě Předboj, 10minut jízdy od Prahy.
Místo je ideální pro rodinné bydlení v klidném prostředí s výbornou dopravní dostupností.Dům se skládá z vstupní chodby, ze které se dostanete do prostorného obývacího pokoje s přípravou pro krbová kamna (vyvložkovaný komín), plně vybaveného kuchyňského koutu se spotřebiči, hlavní ložnicí s velkou šatnou, dvěma dalšími pokoji, koupelny s vanou i sprchovým koutem, dále jsou zde dvě toalety, technická místnost a spíž. Podlahy jsou kombinací plovoucí podlahy a dlažby. (Zájemce si může "vybrat" po dohodě s prodávajícím novou podlahovou krytinu (pouze v obytných místnostech), která mu bude položena) U domu je nainstalována dřevěná terasa o rozloze 33m2.Vytápění zajišťuje samoregulační, odporové, podlahové topení Raichem T2 Red, které je instalované ve všech obytných místnostech domu. Vodu ohřívá elektrický bojler. Celkový měsíční náklad na domácnost je cca 10.000,- Kč (dle info. od uživatele domu). Na zahradě se nachází prostorný zahradní domek, dětský domek s lezeckou stěnou a pískoviště. Obec Předboj nabízí kompletní občanskou vybavenost - mateřskou školu, restauraci, knihovnu, dětská hřiště, sportovní areál a populární golfový resort Yard Resort. Základní škola je v nedalekých Líbeznicích. Spojení do Prahy zajišťuje autobusová linka PID (na metro Ládví), nebo vlak (stanice Kojetice). Dům se momentálně vyklízí a připravuje na prodej, proto zatím nejsou vnitřní fotografie. Energetický štítek připravujeme, proto nyní uvádíme energetickou náročnost "G".Kolaudace proběhla 2015.K nastěhování 1/2026.
| Počet bytů v domě: | 1 |
|---|---|
| Celkový počet podlaží: | 1 |
| Rok výstavby: | 2014 |
| Umístění objektu: | klidná část obce |
| Technologie výstavby: | dřevěná |
| Stav objektu: | velmi dobrý |
| Plocha zahrada: | 646 m2 |
|---|---|
| Plocha terasa: | 33 m2 |
| Užitná plocha: | 97 m2 |
|---|---|
| Zastavěná plocha: | 122 m2 |
| Sklep: | Ne |
|---|
| Topení elektro: | Ano |
|---|---|
| Kanalizace: | Ano |
| Vodovod: | Ano |
| Elektro 230V: | Ano |
| Datové rozvody: | Ano |
|---|---|
| Kabelová TV: | Ano |
| Internet: | Ano |
| Telefon: | Ano |
| Školka: | Ano |
|---|---|
| Dálnice: | Ano |
| Železnice: | Ano |
| Autobus: | Ano |
| Obchody: | Ano |
Podobné nabídky
Prodej rodinného domu 276 m2, pozemek 509 m2, ul. Sokolovská, Mochov, Praha - východ
Cena 12 990 000 Kč (za nemovitost)
Další informace
ZpětÚvodní strana » Reality a nemovitosti Praha-východ » Domy Praha-východ » Prodej domy Praha-východ » Prodej samostatné domy Praha-východ » Prodej rodinného domu 4KK, ZP 122 m2, UP 97,3m2, s pozemkem 768m2, Předboj, Západní Stráň, P-východ

