Pronájem bytu 2+1/S, 56 m2, Praha 6 - Vokovice, Kladenská
Kontakt na makléře
| Cena: | 21 000 Kč (za měsíc)+3.500,-Kč/měsíc poplatky +elektřina a plyn |
|---|---|
| Lokalita: | Vokovice, Praha, Hlavní město Praha |
| Stav nabídky: | aktuální |
| Číslo: | 66729 |
| Typ reality: | Byty 2+1 - Byty |
Pronájem bytu 2+1/S, 56 m2, Praha 6 - Vokovice, Kladenská ( u metra A - Bořislavka).
Hledáte klidné bydlení na Praze 6? Oceníte blízkost metra, výtah a sklep?
Hezký byt se nachází ve čtvrtém patře cihlového domu s výtahem v docházce od metra A - Bořislavka, zastávka tramvají Sídliště červený vrh 150 metrů od domu hned pod supermarketem BILLA.
Kladenská ulice je souběžná s Evropskou ulicí a je to velmi klidná ulice se spoustou zeleně.
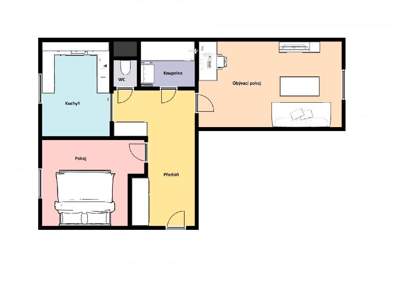
Byt tvoří dvě světlé neprůchozí místnosti, samostatná plně vybavená kuchyně kam se vejde pohodlně stůl se židlemi, koupelna s vanou, pračkou a plynovým kotlem na vytápění bytu.
WC je samostatné vybavené s bidetovou sprškou. V předsíni je dostatek úložného prostoru ve vestavěných skříních.
Veškerá občanská vybavenost v místě. Obchody, školy, školky, pošta. Skvělá dostupnost MHD do centra Prahy.
Byt je nekuřácký. Malý pejsek je povolen.
K dispozici od 1.6.2026. Prohlídky jsou možné již nyní po domluvě.
| Celkový počet podlaží: | 5 |
|---|---|
| Stav objektu: | velmi dobrý |
| Umístění objektu: | klidná část obce |
| Technologie výstavby: | cihlová |
| Užitná plocha: | 56 m2 |
|---|
| Třída energetické náročnosti budovy: | C - Úsporná |
|---|
Podobné nabídky
Další informace
ZpětÚvodní strana » Reality a nemovitosti Praha » Byty Praha » Pronájem byty Hlavní město Praha » Pronájem byty 2+1 Hlavní město Praha » Pronájem bytu 2+1/S, 56 m2, Praha 6 - Vokovice, Kladenská
