Pronájem hezkého bytu 2+1/L/S, 52 m2, ul. Chomutovská, Kadaň.
Kontakt na makléře
| Cena: | 9 800 Kč (za měsíc)+ 3.000,-Kč/měsíc poplatky + přepis energií |
|---|---|
| Lokalita: | Kadaň, Chomutov, Ústecký |
| Stav nabídky: | aktuální |
| Číslo: | 66612 |
| Typ reality: | Byty 2+1 - Byty |
Pronájem hezkého bytu 2+1/L/S, 52 m2, ul. Chomutovská, Kadaň.
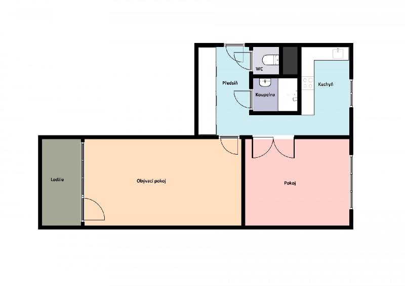
Hledáte světlý, čistý a prostorný byt s hezkým výhledem v Kadani? Oceníte novou rekonstrukci a vlastní lodžii, kde si můžete vychutnat ranní kávu nebo večerní klid?
Hezký, útulný, světlý a nově zrekonstruovaný byt se nachází v 7. patře zatepleného domu s výtahem. Byt působí velmi vzdušně a příjemně. Součástí je nová kuchyňská linka včetně lednice a pračky. Z obývacího pokoje je přímý vstup na lodžii o velikosti 5 m2, která nabízí hezký výhled do okolí. K bytu náleží také praktický uzamykatelný sklep o velikosti 2 m2 v 1. NP domu, ideální pro uložení kočárku, kola, lyží nebo sezónních věcí.
Koupelna je nová, zděná, s vanou, WC je samostatné. V celém bytě jsou položeny nové světlé vinylové podlahy, které podtrhují moderní a čistý vzhled interiéru.
Bytový dům se nachází ve velmi praktické lokalitě – základní škola je přibližně 100 m od domu, zastávka autobusu cca 200 m. V docházkové vzdálenosti je kompletní občanská vybavenost, množství obchodů (Kaufland, Lidl, Penny, Albert), dětská hřiště i sportoviště.
Byt je vhodný k dlouhodobému pronájmu. Menší pejsek je vítán.
K dispozici od 1. 3. 2026.
Prohlídky a rezervace jsou možné ihned.
| Umístění objektu: | centrum obce |
|---|---|
| Technologie výstavby: | panelová |
| Celkový počet podlaží: | 8 |
| Stav objektu: | po rekonstrukci |
| Užitná plocha: | 52 m2 |
|---|
| Třída energetické náročnosti budovy: | C - Úsporná |
|---|
Další informace
ZpětÚvodní strana » Reality a nemovitosti Chomutov » Byty Chomutov » Pronájem byty Chomutov » Pronájem byty 2+1 Chomutov » Pronájem hezkého bytu 2+1/L/S, 52 m2, ul. Chomutovská, Kadaň.
